Description
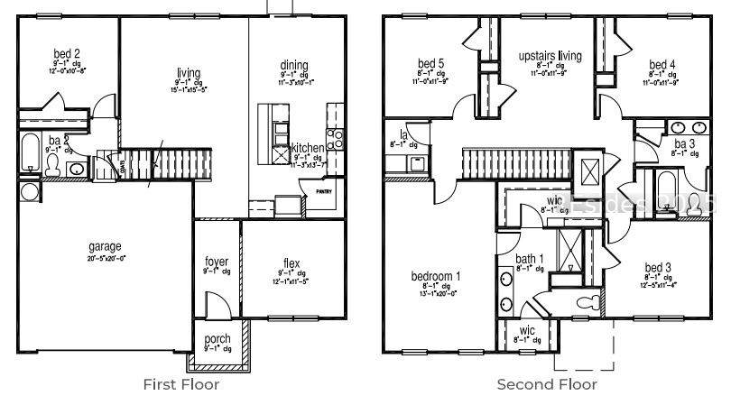
Starting Soon! The Retreat at East Argent, Resort Style Living, Natural Gas Community with lagoon views from your backyard! Step into the Hayden our most spacious floor plan in The Retreat at East Argent, offering a generous 2,511 square feet, 5 bedrooms, 3 full bathrooms, a versatile flex space, upstairs loft, and a roomy 2-car garage. If you're looking for room to live, work, play, and grow this home has it all. The first floor welcomes you with a bright foyer that opens to a flexible front room perfect as a home office, playroom, or formal sitting area. The open-concept kitchen and living space are made for connection, featuring stainless steel appliances, a large island that invites conversation, and a walk-in pantry big enough to handle everything from kitchen devices to holiday baking supplies. A main-level bedroom and full bath provide an ideal setup for guests, extended family, or multigenerational living. Upstairs, the primary suite impresses with a spacious layout, his and hers walk-in closets, and a spa-like bath with double sinks and a large walk-in shower. Three additional bedrooms and a shared bath give everyone their own space, while the loft offers a second living area for movie nights, game days, or creative corners. A convenient upstairs laundry room rounds out the ease of everyday living. Packed with smart features, thoughtful design, and room for everything (and everyone), the Hayden is the ultimate upgrade for families ready to stretch out and stay awhile. Home is under construction. Pictures, photographs, colors, features, & sizes are for illustration purposes only and will vary from the homes as built. The photos are Not of subject property. Model home hours Mon-Sat 10am-5:30pm and Sun 12-5:30pm. More information on programs and options are available for this home.
-
5BEDS
-
0.15ACRES
-
3BATHS
-
01/2 BATHS
-
2,511SQFT
-
$174$/SQFT
School Ratings & Info
Description
Starting Soon! The Retreat at East Argent, Resort Style Living, Natural Gas Community with lagoon views from your backyard! Step into the Hayden our most spacious floor plan in The Retreat at East Argent, offering a generous 2,511 square feet, 5 bedrooms, 3 full bathrooms, a versatile flex space, upstairs loft, and a roomy 2-car garage. If you're looking for room to live, work, play, and grow this home has it all. The first floor welcomes you with a bright foyer that opens to a flexible front room perfect as a home office, playroom, or formal sitting area. The open-concept kitchen and living space are made for connection, featuring stainless steel appliances, a large island that invites conversation, and a walk-in pantry big enough to handle everything from kitchen devices to holiday baking supplies. A main-level bedroom and full bath provide an ideal setup for guests, extended family, or multigenerational living. Upstairs, the primary suite impresses with a spacious layout, his and hers walk-in closets, and a spa-like bath with double sinks and a large walk-in shower. Three additional bedrooms and a shared bath give everyone their own space, while the loft offers a second living area for movie nights, game days, or creative corners. A convenient upstairs laundry room rounds out the ease of everyday living. Packed with smart features, thoughtful design, and room for everything (and everyone), the Hayden is the ultimate upgrade for families ready to stretch out and stay awhile. Home is under construction. Pictures, photographs, colors, features, & sizes are for illustration purposes only and will vary from the homes as built. The photos are Not of subject property. Model home hours Mon-Sat 10am-5:30pm and Sun 12-5:30pm. More information on programs and options are available for this home.
Related Properties
We do not attempt to independently verify the currency, completeness, accuracy or authenticity of the data contained herein. All area measurements and calculations are approximate and should be independently verified. Data may be subject to transcription and transmission errors. Accordingly, the data is provided on an “as is” “as available” basis only and may not reflect all real estate activity in the market”. © 2026 REsides, Inc. All rights reserved. Certain information contained herein is derived from information, which is the licensed property of, and copyrighted by, REsides, Inc. Data last updated 2026-02-06T21:58:13.663.