Description
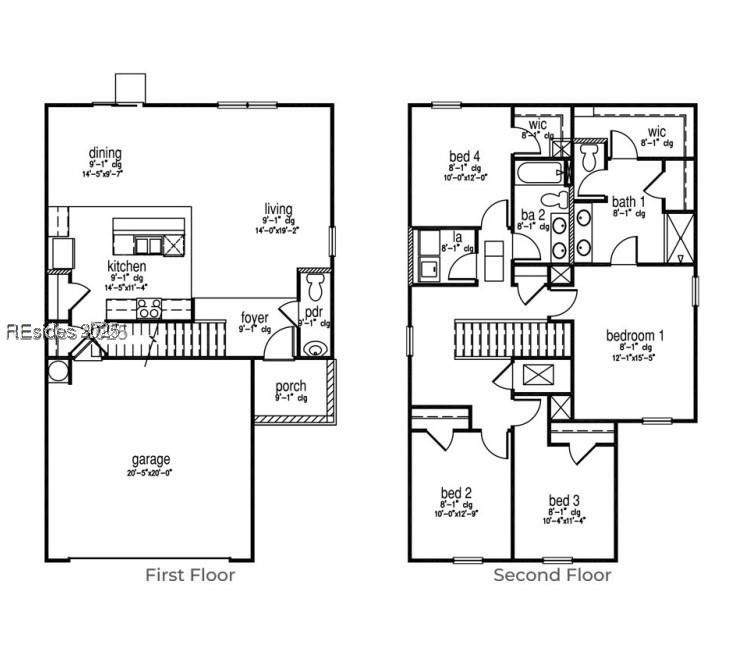
Limited time pricing! Welcome to The Groves at Bees Creek in Ridgeland, SC! The Aisle plan is a 4-bedroom 2.5 bath home is 2 story living at its finest. The main level features a large kitchen with ample cabinetry, counter space, pantry, center island, & stainless-steel appliances! The kitchen is Open to the generous living area with family room & dining area- perfect for entertaining! Smart Home Technology & 2'' Faux Wood Blinds Included! The photos are NOT of subject property. Home is under construction. Ask how to receive up to $10,000 in Closing Costs w/ Preferred Lender!
-
4BEDS
-
0.17ACRES
-
2BATHS
-
11/2 BATHS
-
1,927SQFT
-
$184$/SQFT
School Ratings & Info
Description
Limited time pricing! Welcome to The Groves at Bees Creek in Ridgeland, SC! The Aisle plan is a 4-bedroom 2.5 bath home is 2 story living at its finest. The main level features a large kitchen with ample cabinetry, counter space, pantry, center island, & stainless-steel appliances! The kitchen is Open to the generous living area with family room & dining area- perfect for entertaining! Smart Home Technology & 2'' Faux Wood Blinds Included! The photos are NOT of subject property. Home is under construction. Ask how to receive up to $10,000 in Closing Costs w/ Preferred Lender!
Related Properties
We do not attempt to independently verify the currency, completeness, accuracy or authenticity of the data contained herein. All area measurements and calculations are approximate and should be independently verified. Data may be subject to transcription and transmission errors. Accordingly, the data is provided on an “as is” “as available” basis only and may not reflect all real estate activity in the market”. © 2025 REsides, Inc. All rights reserved. Certain information contained herein is derived from information, which is the licensed property of, and copyrighted by, REsides, Inc. Data last updated 2025-12-06T21:58:02.047.